賃貸
西宮市湯元町 店舗
-
賃料(管理費等)
25万(0円) -
敷金/礼金
100万円/100万円
-
所在地/交通
西宮市湯元町/阪急神戸線「夙川」駅 バス乗車18分 「西宮甲山高校前」バス停 徒歩5分/阪急神戸線「夙川」駅 バス乗車15分 「鷲林寺」バス停 徒歩9分
-
構造/階数
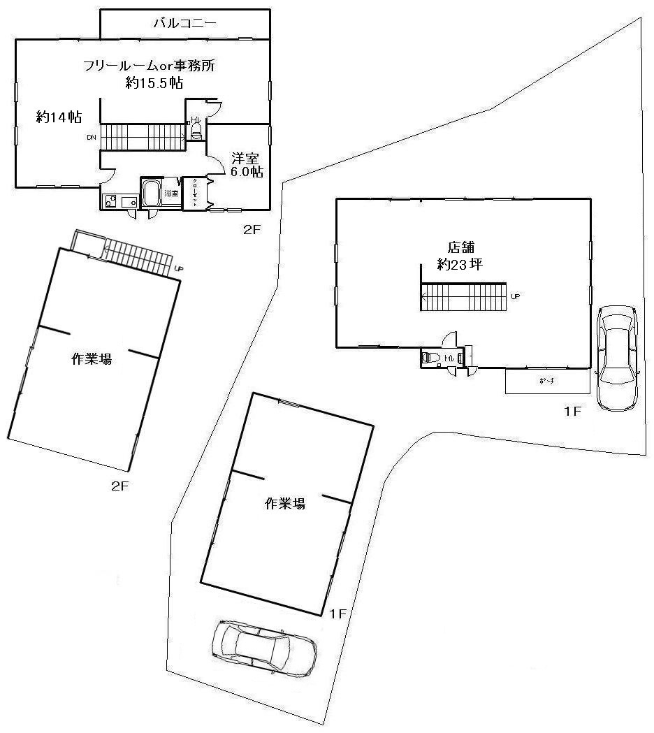
木造/2階建 1・2階部分
-
使用部分面積
152.36㎡
-
築年月
2000年4月
-
現状
空室
-
引渡し
相談
-
条件・設備等
・電気・上下水道
-
備考
・上記使用部分面積に作業場部分(約27坪)は含まれておりません
・上記賃料は消費税22,727円、礼金は消費税90,909円を含んだ額となっています
・当社指定の火災保険及び、審査保証会社を要します
・現況渡しとし、貸主は造作・什器備品の性能保証を負いません
・貸主は適格請求書発行事業者ではございません







